Projekt Schwörstadt, Baugebiet „Am Rhein“ (Für Investoren)
Bauplätze verfügbar

Attraktive Bauplätze für Mehrfamilienhäuser und soziale Einrichtungen
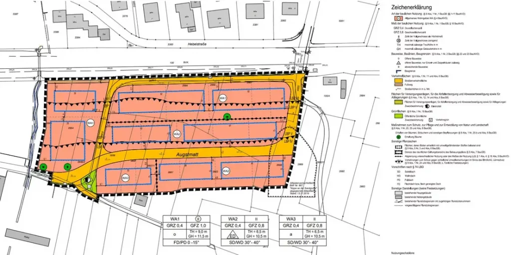
Die Gesellschaft für kommunale Baulanderschließung (GkB mbH) verkauft Bauplätze im Baugebiet „Am Rhein“. Die angebotenen Bauplätze können nach den Festsetzungen des Bebauungsplans „Am Rhein“ bebaut werden. Das Baugebiet wird derzeit erschlossen. Die Fertigstellung der Erschließungsanlage ist für April 2025 vorgesehen, sodass mit den privaten Baumaßnahmen im Mai 2025 begonnen werden kann. Bei den hier angebotenen Baugrundstücken handelt es sich um Bauplätze für soziale Einrichtungen wie barrierefreie Wohnungen, altersgerechtes Wohnen o. ä. sowie Mehrfamilienhäuser.
Gewerbebauplätze
Fläche Gesamt
Alle wichtigen Informationen
ab 824 – 1.452 m²
450 €/m²
Erschlossen
Sofort (Baubeginn ca. ab Mai 2025)

Weitere Eigenschaften
Die Lage
Das Baugebiet liegt an der Bahnlinie Basel-Singen/Friedrichshafen und liegt in der Nähe eines Bahnsteigs. Außerdem befindet sich auf der anderen Bahnseite ein Kindergarten. Das Wohngebiet hat eine hochwertige Freiraumqualität durch den Rhein und die Frei- und Grünflächen.

Übersicht der Bauplätze
Verschaffen Sie sich einen klaren Überblick über die verfügbaren Bauplätze in Schwörstadt.
Jetzt Anfrage stellen
Über 200 qualifizierte Fachleute engagieren sich für Ihr Projekt.
Die Sorgfalt bei der Planung und die Nähe zu den Auftraggebern zeichnen unsere Mitarbeiter:innen besonders aus.

- erschliessung@gkb-ag.de
- +49 721 96232‑60
- Am Storrenacker 1 b
D - 76139 Karlsruhe
Sie haben noch Fragen?
Gerne beantworten wir Ihre offenen Fragen. Folgend finden Sie eine Liste mit häufig gestellten Fragen sowie die entsprechenden Antworten darauf. Sollte Ihre Frage nicht dabei gewesen sein, freuen wir uns, wenn Sie sich bei uns melden.
Welche Unterlagen benötige ich, um einen Bauplatz bei der GkB zu erwerben?
Zum aktuellen Stand der Vergabe müssen Sie uns keine Unterlagen einreichen. Nach Freigabe der Gemeinde kann ein Notartermin vereinbart werden, um das Grundstück zu verkaufen. Sie müssen nur gewährleisten, dass Sie den Kaufpreis innerhalb der Frist nach der notariellen Übertragung bezahlen können.
Welche Kosten sind mit der Nutzung der Dienstleistungen der GkB verbunden?
Es entstehen Ihnen keine Kosten für die Dienstleistungen der GkB.
Jahrzehntelange Erfahrung im Bereich der Bauplatz-Entwicklung machen uns zu Ihrem idealen Partner. Ob Eigenheim, Gewerbe oder Bauplatzvermarktung für Kommunen – mit meinem Team realisieren wir auch Ihr Bauvorhaben.








