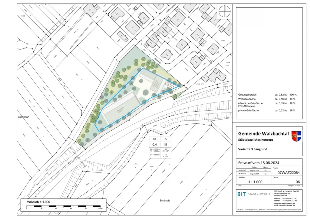
Projekt Walzbachtal-Jöhlingen, Baugebiet „Weidentaler Straße“ (Für Investoren)
Bauplätze verfügbar

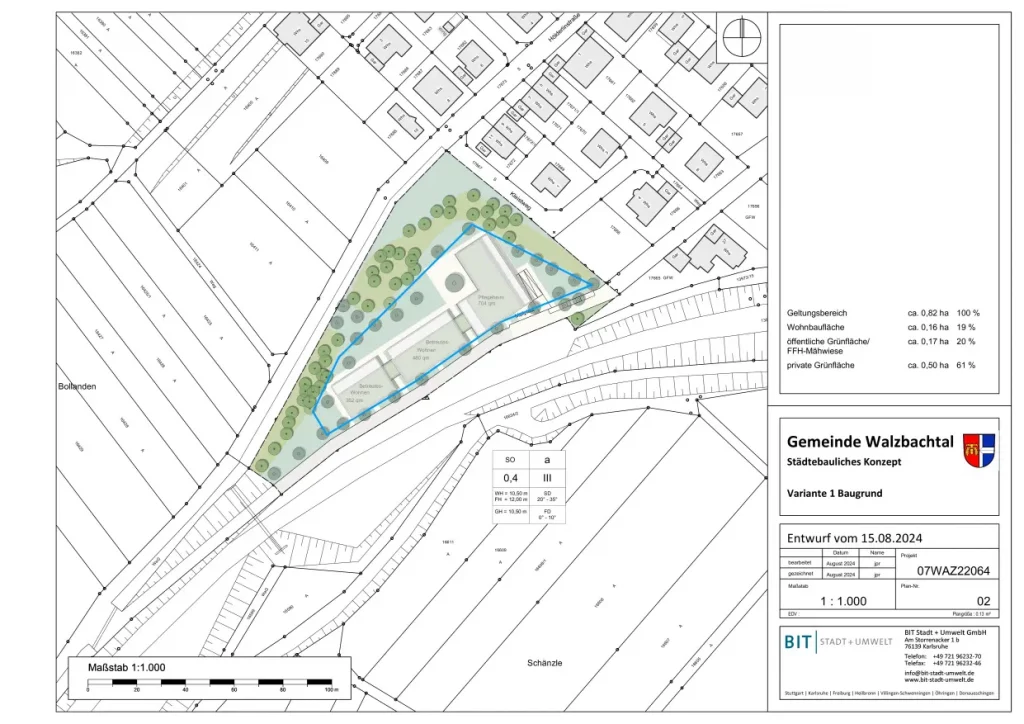
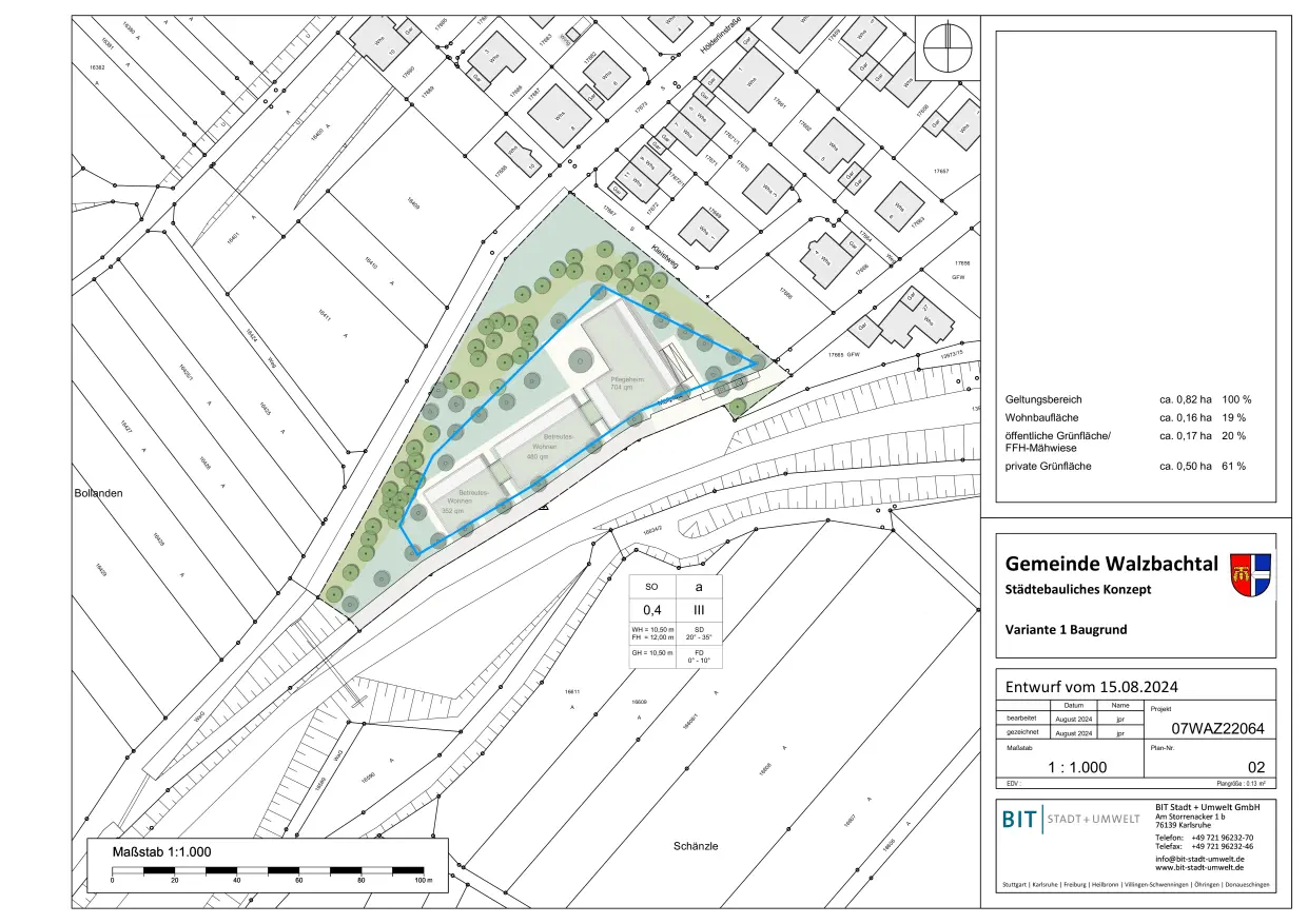
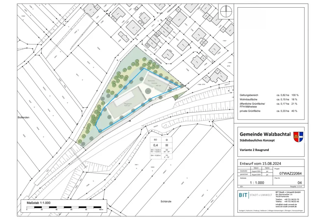
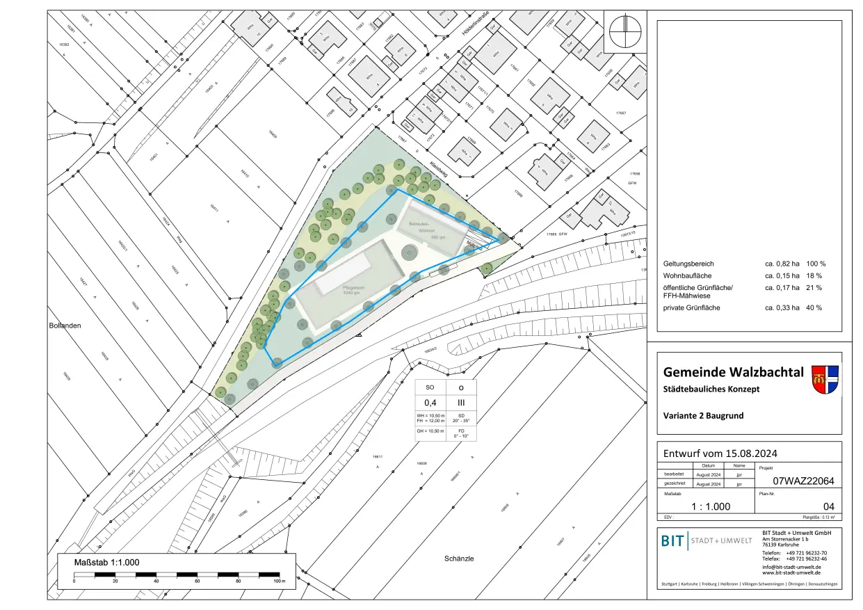
Grundstück für altersgerechtes Wohnen
Die Gesellschaft für kommunale Baulanderschließung (GkB mbH) verkauft einen Bauplatz im Gebiet „Weidentaler Straße“ in Walzbachtal-Jöhlingen. Für das Gebiet muss noch ein Bebauungsplan entwickelt werden. Das Baugebiet ist ebenfalls noch unerschlossen.
Die Gemeinde möchte an dieser Stelle ein Angebot für altersgerechtes Wohnen schaffen, welches 30 – 45 Bewohnern in der stationären Pflege Platz bieten soll. Optional sind auch Angebote für Tagespflege oder betreutes Wohnen möglich. Ein Bewerber soll hierfür ein realisierbares Konzept einschließlich der Erschließung des Grundstücks entwickeln und auf zentrale Fragen zur Bewirtschaftung, zu baulichen und wirtschaftlichen Fragestellungen sowie zum möglichen Betreuungsangebot im geplanten Seniorenzentrum eingehen.
Der Verkauf erfolgt dann nach dem Kaufpreisgebot sowie dem eingereichten Konzept.
bebaubare Fläche, 7.135 m² Fläche gesamt
Alle wichtigen Informationen
Ca. 3.000 m²
Nach Gebot
Unerschlossen
Sofort

Weitere Eigenschaften
Lebensqualität in Walzbachtal-Jöhlingen: Die Vorteile der Umgebung
Von der hügeligen und grünen Umgebung bis zu den vielfältigen Freizeitmöglichkeiten bietet die Gemeinde Walzbachtal eine hohe Lebensqualität für Einwohner und Besucher gleichermaßen.
- Idyllische Lage am Rand des Kraichgaus
- Vielfältige und lebenswerte Gemeinde mit ausgeprägtem und harmonischem Dorfleben
- Stadt Karlsruhe mit vielen weiteren Freizeitmöglichkeiten in kurzer Zeit zu erreichen
- Kulturelle Vielfalt für alle Altersschichten
Die Lage
Walzbachtal liegt entlang der Verkehrsverbindung zwischen Karlsruhe und Bretten im Landkreis Karlsruhe. Durch die B293 erreicht man auch Eppingen und Heilbronn schnell und einfach. Eine gute S-Bahn-Anbindung ist ebenso vorhanden.

Übersicht der Bauplätze
Verschaffen Sie sich einen klaren Überblick über die verfügbaren Bauplätze in Schwörstadt.
| Flurstück | Bauplatz | Fläche [m²] | Verkaufspreis | Gebiet | Verfügbarkeit | |
|---|---|---|---|---|---|---|
| 16423 | 3.000 | Nach Gebot | Weidentaler Straße | frei | Anfragen |
Dokumente und Informationen
Jetzt Anfrage stellen
Über 200 qualifizierte Fachleute engagieren sich für Ihr Projekt.
Die Sorgfalt bei der Planung und die Nähe zu den Auftraggebern zeichnen unsere Mitarbeiter:innen besonders aus.

- erschliessung@gkb-ag.de
- +49 721 96232‑60
- Am Storrenacker 1 b
D - 76139 Karlsruhe
Sie haben noch Fragen?
Gerne beantworten wir Ihre offenen Fragen. Folgend finden Sie eine Liste mit häufig gestellten Fragen sowie die entsprechenden Antworten darauf. Sollte Ihre Frage nicht dabei gewesen sein, freuen wir uns, wenn Sie sich bei uns melden.
Welche Unterlagen benötige ich, um einen Bauplatz bei der GkB zu erwerben?
Wir bitte um Einreichung eines aussagekräftigen Konzeptes, in welchem die Fragestellungen aus dem Exposé beantwortet werden und eine zukünftige Nutzung sowie die Betreiber dargestellt werden
Welche Kosten sind mit der Nutzung der Dienstleistungen der GkB verbunden?
Es entstehen Ihnen keine Kosten für die Dienstleistungen der GkB.
Jahrzehntelange Erfahrung im Bereich der Bauplatz-Entwicklung machen uns zu Ihrem idealen Partner. Ob Eigenheim, Gewerbe oder Bauplatzvermarktung für Kommunen – mit meinem Team realisieren wir auch Ihr Bauvorhaben.






